Алюмінієва одностороння рокзладна стремянка-підмостя TOR –series призначена як для побутових так і для професійних потреб. Діапазон висот – 5-9 сходинок (робоча висота 3,2- 4,2м), легка та стабільна. Протиковзкі полімерні упори, рельєфні сходинки. Прогумована верхня площадка. Ручки на опорах драбини. Надійні замки з захистом від випадкового складання. Колеса для легкого транспортування.
Клас стремянки Складська
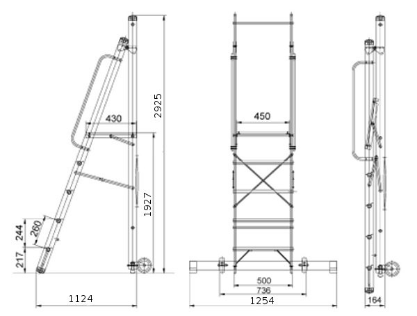
Матеріал Алюміній
Кількість сходинок 8 шт
Висота робочої площадки 1,927 м
Робоча висота 3,927 м
Робоче навантаження 150 кг
| Властивості | Характеристики |
| Розмір профіля | 71.5*20 |
| Тип драбини | Стрем`янка з поручнем |
| Ширина драбини | 50 |
| Висота до платформи | 193 |
| Вага+ | 18.65 |
| Габарити паковання | 50*16*290 |
| Довжина в розсунутому стані | 2.9 |
| Висота у складеному вигляді A | 2.9 |
| Довжина 1 секції | 290 |
| Матеріал | Алюминій |
| Максимальне навантаження | 150 кг |
| Країна торгової марки | Словаччина |
| Кількість ступенів | 1*8 |
| Комплектація | упаковка, нижній стабілізатор |
| Особливості | фіксуючі розтяжки, бічні поручні |
Написати відгук